
逆流闭式冷却塔
工作原理:循环水在盘管内流动, 盘管外壁被喷淋水包裹,循环水的热量通过盘管壁传递给喷淋水, 喷淋水再通过 PVC填料与进风逆向流动,进行热交换,形成饱和的湿热空气通过风机排入大气。
全国统一询价热线
189-5156-1874
工作原理:循环水在盘管内流动, 盘管外壁被喷淋水包裹,循环水的热量通过盘管壁传递给喷淋水, 喷淋水再通过 PVC填料与进风逆向流动,进行热交换,形成饱和的湿热空气通过风机排入大气。
全国统一询价热线
189-5156-1874
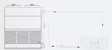
逆流闭式冷却塔工作原理:
循环水在盘管内流动, 盘管外壁被喷淋水包裹,循环水的热量通过盘管壁传递给喷淋水, 喷淋水再通过 PVC填料与进风逆向流动,进行热交换,形成饱和的湿热空气通过风机排入大气。
采用逆流冷却方式,内部设计紧凑,缩小了占地面积,满足 用户空间需求;高效换热能力的冷却器。
TP2 磷脱氧铜管,采用银基焊条焊接;SUS304 不锈钢管, 采用氩弧焊焊接 ;冷却器采用防冻节能型设计, 在北方 地区较低气温时保证循环水排干避免冻坏。
采用高阻燃 100%PVC 原生料,填料采用吊挂方式安装, 无需粘贴,换热均匀,不易堵塞,方便清洗 ;收水器采用 夹网式设计,高效收水,飘水率极低。
风筒、面板、集水盘等全部采用覆镁铝锌板优质钢材,超 强耐用。
风机&电机采用国内知名品牌,噪音及故障率极低 ; 喷淋水泵采用国内知名品牌,大流量、低扬程 ;喷淋系统 采用离心式喷头,不易堵塞。
磷脱氧铜是熔解高纯度的原材料, 把熔化铜中产生的氧气用亲氧性的 磷(P)脱氧,使其氧含量降低到 100PPm 以下, 从而提高其延展性、 耐蚀、热传导性、焊接性。
不锈钢具有优良的耐腐蚀性能和较好的抗晶间腐蚀性能。对浓度≤ 65% 的沸腾温度以下的硝酸,具有很强的抗腐蚀性。对碱溶液及大部 分有机酸和无机酸亦具有良好的耐腐蚀能力。
不锈钢具有优良的耐腐蚀性能和较好的抗晶间腐蚀性能。铝质翅片经过 特殊的氧化处理,防腐性能优良,导热性好,已广泛应用于各种工业和 民用领域。
风机采用铝合金叶片的冷却塔专用轴流风机, 强度高、 风量大、 能耗 低、噪音少、使用寿命长、流线型高强度风筒保证风机入口、出口气流 均匀,最大限度地降低风机能耗。
冷却塔面板采用镀镁铝锌板&镀锌板制作(客户需求),是当真耐腐蚀 性能最强的板材之一, 使用寿命是普通钢板的 3-6 倍, 并且具有阻热 性强、耐热性优、外观美观等优点。
采用不受转向限制的优质的机械密封,无泄漏,寿命长,并选用专用户 外型电机, 特殊配置的进口轴承, 保证水泵长期可靠运行, 具有功率 小、低扬程、大流量、低噪音等特点。
高阻燃100%PVC原生料 ;收水器、导风结构自成一体;填料直接 吊挂无需黏贴,片距适中,布水均匀,换热充分、不易堵塞、安装、维 护方便。
高阻燃100%PVC原生料,夹网式收水器,高效脱水、漂水率极低、拆 卸方便。
采用专利离心式喷头,防松设计,孔径大,压损低,布水均匀,不易堵塞。
根据用户实际需要,选配国际品牌;可选择简单的启停控制,也可通过 PLC控制系统以及对设备的电机进行变频控制。
中、高频炉体及电源;连铸连轧设备;感应加热成套设备;保温炉、熔炼炉、透热炉
水源式热泵系统;机房空调系统;其它中央空调
液压油;电镀溶液;淬火油;生产线循环水
空压机水套系统;注塑模具冷却;变压器冷却
真空炉冷却;辅助供冷系统;发动机水套冷却
淬火液冷却;工艺流体冷却;污水浓缩蒸发
热品推荐
Hot product






相关推荐
Hot articles